2655 102nd Boulevard, WILDWOOD, FL 34785
Priced at Only: $1,875,000
Would you like to sell your home before you purchase this one?
- MLS#: OM716761 ( Residential )
- Street Address: 2655 102nd Boulevard
- Viewed: 2
- Price: $1,875,000
- Price sqft: $266
- Waterfront: No
- Year Built: 2006
- Bldg sqft: 7060
- Bedrooms: 4
- Total Baths: 5
- Full Baths: 4
- 1/2 Baths: 1
- Garage / Parking Spaces: 3
- Additional Information
- Geolocation: 28.908 / -82.1477
- County: SUMTER
- City: WILDWOOD
- Zipcode: 34785
- Subdivision: Equine Acres
- Elementary School: Wildwood
- Middle School: Wildwood
- High School: Wildwood
- Provided by: PREMIER SOTHEBY'S INTERNATIONAL REALTY
- Contact: Angela Rose
- 352-509-6455

- DMCA Notice
Description
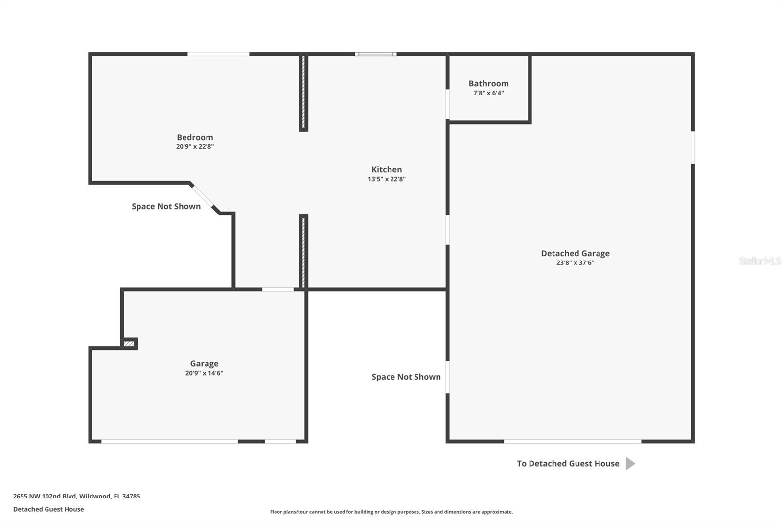
Welcome to this distinguished estate in the exclusive community of Equine Acres. Set on ten fully fenced and cross fenced acres in Wildwood, just south of Ocala and moments from The Villages, this property offers a refined blend of luxury, privacy and functionality for both horse enthusiasts and those seeking an expansive country retreat. With two separate residences on the property, it is quite versatile. A stone columned circular drive introduces the stately residence, which spans 4,829 square feet under air. Double doors open to a grand foyer and an airy floor plan designed for comfortable living and elegant entertaining. Beyond the entry, a wall of French doors frames serene views of the resort style outdoor living area. Finishes include hardwood and tile floors, soaring ceilings with crown molding, and icynene foam insulation in both walls and ceilings for efficiency. Surround sound is integrated throughout. The well appointed chefs kitchen is equipped with stainless steel appliances, granite countertops, custom solid wood cabinetry with a matching range hood, double wall ovens, warming drawer, a walk in pantry, and a breakfast bar overlooking the family room. A stone gas fireplace anchors the family gathering space, while the adjacent breakfast nook invites morning sunlight and views of the pool. The owners suite provides a private sanctuary with lanai access, sitting area, dual walk in closets, and a spa style bath featuring dual vanities, a roman shower and a jetted tub. Two additional bedrooms each offer walk in closets and ensuite baths, complemented by a powder room, full pool bath, and large laundry room. The bonus room allows flexible use for a theater, fitness or recreation space and connects to an attached three car garage. Designed for year round enjoyment, the outdoor area showcases a heated saltwater pool with rock waterfall and spa, framed by a tropical silhouette screen enclosure. The covered lanai and full outdoor kitchen create an ideal setting for entertaining or quiet relaxation. A separate 40 by 40 foot structure, designed to mirror the main homes architecture, includes a full one bedroom guest apartment, full kitchen and half bath that is plumbed for a shower, along with garage and workshop space. Four cross fenced pastures with water access accommodate horses, cattle or hay production. There is also a 50' x 60' barn with loft in the rear of the property. Located on a paved, no through street among similar acreage estates, this property offers serenity and space with proximity to dining, shopping and equestrian venues. A comprehensive features list is available upon request. Schedule a private showing to experience this exceptional estate firsthand.
Payment Calculator
- Principal & Interest -
- Property Tax $
- Home Insurance $
- HOA Fees $
- Monthly -
For a Fast & FREE Mortgage Pre-Approval
Apply Now
Apply NowFeatures
Building and Construction
- Builder Model: Custom
- Covered Spaces: 0.00
- Exterior Features: French Doors, Lighting, Outdoor Kitchen, Rain Gutters
- Fencing: Cross Fenced, Fenced, Wood
- Flooring: Carpet, Laminate, Tile, Wood
- Living Area: 4829.00
- Other Structures: Barn(s), Guest House, Storage
- Roof: Shingle
Property Information
- Property Condition: Completed
Land Information
- Lot Features: Corner Lot, Farm, In County, Landscaped, Level, Pasture, Street Dead-End, Paved, Zoned for Horses
School Information
- High School: Wildwood High
- Middle School: Wildwood Middle
- School Elementary: Wildwood Elementary
Garage and Parking
- Garage Spaces: 3.00
- Open Parking Spaces: 0.00
- Parking Features: Circular Driveway, Driveway, Garage Door Opener, Garage Faces Side, Golf Cart Garage, Oversized, Workshop in Garage
Eco-Communities
- Pool Features: Gunite, Heated, In Ground, Lighting, Outside Bath Access, Pool Alarm, Salt Water, Screen Enclosure
- Water Source: Private, Well
Utilities
- Carport Spaces: 0.00
- Cooling: Central Air
- Heating: Central, Electric, Heat Pump, Zoned
- Pets Allowed: Yes
- Sewer: Septic Tank
- Utilities: Private
Finance and Tax Information
- Home Owners Association Fee: 0.00
- Insurance Expense: 0.00
- Net Operating Income: 0.00
- Other Expense: 0.00
- Tax Year: 2025
Other Features
- Appliances: Built-In Oven, Convection Oven, Dishwasher, Disposal, Dryer, Electric Water Heater, Microwave, Range, Range Hood, Refrigerator, Washer, Water Softener, Wine Refrigerator
- Country: US
- Furnished: Unfurnished
- Interior Features: Ceiling Fans(s), Crown Molding, Eat-in Kitchen, Open Floorplan, Solid Wood Cabinets, Split Bedroom, Stone Counters, Thermostat, Tray Ceiling(s), Vaulted Ceiling(s), Walk-In Closet(s), Window Treatments
- Legal Description: TRACT 1 PHASE II EQUINE ACRES UNRECD SUBD DESC AS FOLLOWS COMM AT S 1/4 COR OF SEC RUN N 00 DEG 11'54" W 1975.26 FT S 89 DEG 19'36"W 634.87 FT TO POB CONT S 89 DEG 19'36" W 634.87 FT N 00 DEG 08'05"W 686.36 FT N 89 DEG 19'36" E 634.49 FT S 00 DEG 10'00" E 686.35 FT TO POB
- Levels: One
- Area Major: 34785 - Wildwood
- Occupant Type: Vacant
- Parcel Number: C19-039
- Possession: Close Of Escrow
- Style: Florida
- Zoning Code: A5
Contact Info
Property Location and Similar Properties
Nearby Subdivisions
Barwicks Addwildwood
Beaumont
Beaumont Ph 1
Beaumont Ph 2 3
Bridges Sub To Wildwood
Continental Camper Resorts
Continental Country Club
Crestview
Crestview Sub
Crestview Subd
Equine Acres
Fairways At Rolling Hills Firs
Fairways Of Rolling Hills
Fairwaysrolling Hills
Fairwaysrolling Hills 01
Fairwaysrolling Hills Add 01
Fox Hollow
Fox Hollow Ph 02
Fox Hollow Sub
Gray Porter Sub
Gray Porters Sub
Highfield At Twisted Oaks
Lot 14 Beaumont Phase I Pb 18
Meadouvista
Meadovista
Meadow Lawn
Meadowlawn Add
Mission Heights
Moggs Add
None
Not On List
Oak Hill
Oak Hill Sub
Orange Home 02
Pepper Tree Village
Pettys Add
Rolling Hills Lake
Rolling Hills Manor
Rural
Sunny Dell Sub Un 2
Sunset Park
Tillman Oaks
Triumph South
Triumph South Ph 1
Twisted Oaks
Wildwood
Wildwood Country Estates
Wildwood Country Estates Ph On
Wildwood Park
Wildwood Ranches



























































































































