2959 Hickory Court, DUNEDIN, FL 34698
Priced at Only: $469,000
Would you like to sell your home before you purchase this one?
- MLS#: TB8465522 ( Residential )
- Street Address: 2959 Hickory Court
- Viewed: 49
- Price: $469,000
- Price sqft: $216
- Waterfront: No
- Year Built: 1976
- Bldg sqft: 2176
- Bedrooms: 3
- Total Baths: 2
- Full Baths: 2
- Garage / Parking Spaces: 2
- Days On Market: 52
- Additional Information
- Geolocation: 28.0292 / -82.7444
- County: PINELLAS
- City: DUNEDIN
- Zipcode: 34698
- Subdivision: Wilshire Estates
- Elementary School: Garrison
- Middle School: Palm Harbor
- High School: Dunedin
- Provided by: KELLER WILLIAMS REALTY- PALM H
- Contact: Gregory Schreiber
- 727-772-0772

- DMCA Notice
Description
100% Financing, NO DOWNPAYMENT loan available!
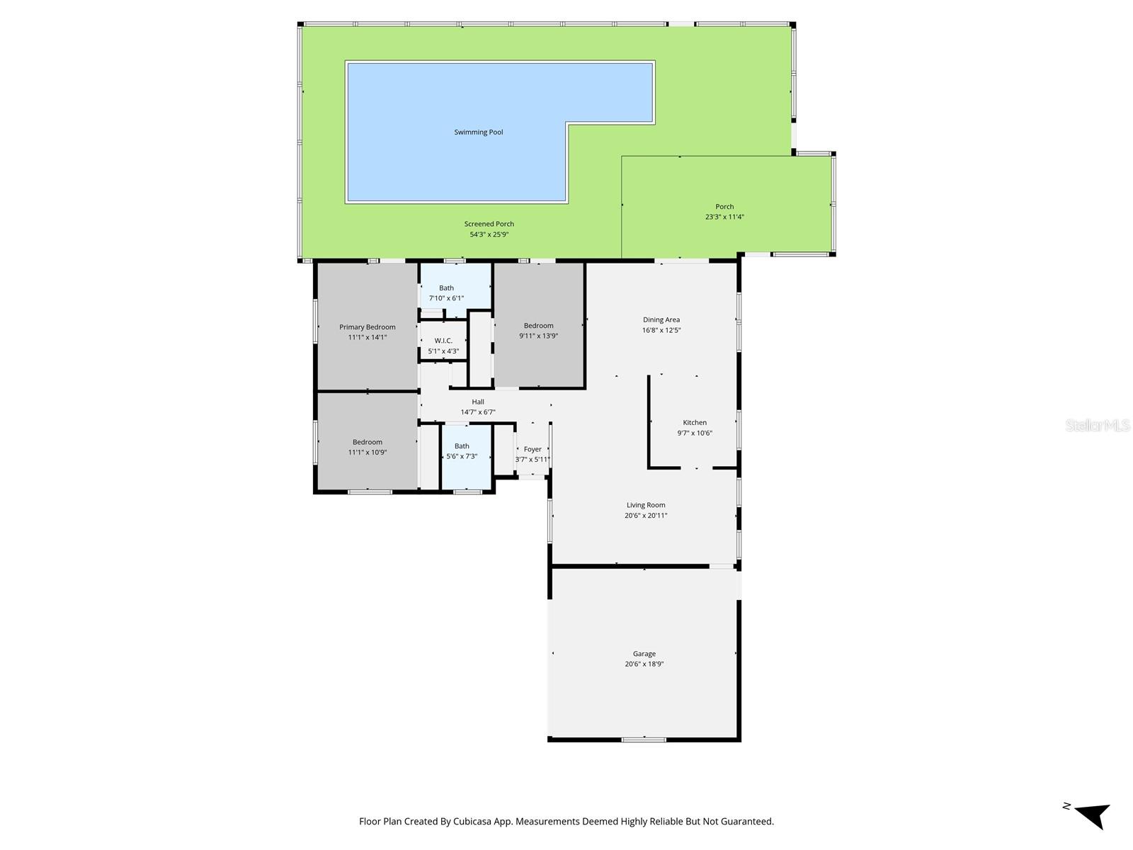
Welcome to this beautifully maintained 3 bedroom, 2 bath home with a screened pool, ideally situated on an attractive corner lot in the Wilshire Estates community of unincorporated Dunedin. Located in the X flood zone, this home offers peace of mind along with convenient access to schools, shopping, everyday amenities, Downtown Dunedin, Honeymoon Island & much more.
The private backyard is designed for Florida living, featuring an in ground pool with screen enclosure, newly resurfaced pool finish, and a new filter system. A covered patio with table, chairs, and gas grill provides the perfect setting for outdoor dining and entertaining, with stone walkways leading to the pool on both the east and south sides. An 8 vinyl privacy fence surrounds the yard, complemented by a shallow well irrigation system with automatic timer.
Inside, the home offers low maintenance ceramic tile flooring throughout, ceiling fans in every room, dimmable lighting, and abundant natural light. The spacious living room features an L shaped layout with built in bookshelves and three exterior windows. The family room and multiple bedrooms provide direct access to the pool area. The pool is newly resurfaced, and all
new parts in the filter system.
The kitchen is well equipped with stainless steel appliances, including a 24 cu ft LG refrigerator (purchased 9/2023), Frigidaire electric range with self cleaning oven (purchased 5/2021 and under warranty), dishwasher, microwave, stainless double sink with disposal, concealed lighting, ceramic tile backsplash, and generous cabinet space.
All bedrooms offer ample closet storage, with a walk in closet in the primary suite. The primary bedroom and one additional bedroom feature private exit doors to the pool. The primary bath includes a tub/shower combination, vanity storage, recessed lighting, and ceramic tile throughout. The main bath features a large walk in shower, wall closet, ceramic tile, and updated commode components.
Additional highlights include a double car garage with automatic opener, hurricane rated garage door, overhead storage with drop down ladder, washer/dryer hookups, a 52 gallon quick recovery water heater still under warranty, central heat and air with Honeywell programmable thermostat, concrete driveway, smoke detectors, and window blinds throughout, HOA is optional.
4 point inspection attached.
From Pinellas County:
2959 Hickory Ct, Dunedin is a single family home, one living unit, located in the unincorporated part of the county. Short term rentals, periods of under 30 days, if a Certificate of Use is obtained.
Property was purchased by current seller with a property settlement/sinkhole repaired. Full engineer report & seller explanation attached.
This well cared for Dunedin home offers comfort, privacy, and true Florida lifestyle living.
Payment Calculator
- Principal & Interest -
- Property Tax $
- Home Insurance $
- HOA Fees $
- Monthly -
For a Fast & FREE Mortgage Pre-Approval
Apply Now
Apply NowFeatures
Building and Construction
- Covered Spaces: 0.00
- Exterior Features: Outdoor Grill, Private Yard
- Flooring: Ceramic Tile, Tile
- Living Area: 1438.00
- Roof: Shingle
Property Information
- Property Condition: Completed
School Information
- High School: Dunedin High-PN
- Middle School: Palm Harbor Middle-PN
- School Elementary: Garrison-Jones Elementary-PN
Garage and Parking
- Garage Spaces: 2.00
- Open Parking Spaces: 0.00
Eco-Communities
- Pool Features: In Ground, Screen Enclosure, Self Cleaning
- Water Source: Public
Utilities
- Carport Spaces: 0.00
- Cooling: Central Air
- Heating: Central
- Pets Allowed: Cats OK, Dogs OK
- Sewer: Public Sewer
- Utilities: Cable Available, Cable Connected, Electricity Available, Electricity Connected
Finance and Tax Information
- Home Owners Association Fee: 50.00
- Insurance Expense: 0.00
- Net Operating Income: 0.00
- Other Expense: 0.00
- Tax Year: 2024
Other Features
- Appliances: Built-In Oven, Dishwasher, Dryer, Microwave, Range, Refrigerator, Washer
- Association Name: FLORIDA PROPERTY MANAGEMENT SERVICES
- Association Phone: 941-960-5000
- Country: US
- Furnished: Unfurnished
- Interior Features: High Ceilings, Primary Bedroom Main Floor
- Legal Description: WILSHIRE ESTATES LOT 51
- Levels: One
- Area Major: 34698 - Dunedin
- Occupant Type: Vacant
- Parcel Number: 19-28-16-98127-000-0510
- Possession: Close Of Escrow
- Views: 49
- Zoning Code: R-2
Contact Info
Property Location and Similar Properties
Nearby Subdivisions
A B Ranchette
Barrington Hills
Baywood Shores
Baywood Shores 1st Add
Belle Terre
Braemoor Estates
Braemoor Grove
Braemoor Lake Villas
Braemoor South
Breezy Acres Park
Coachlight Way
Concord Groves Add
Countrygrove West
Dexter Park 1st Add
Dunedin Cove
Dunedin Isles
Dunedin Isles 1
Dunedin Isles Country Club
Dunedin Isles Country Club Sec
Dunedin Pines
Dunedin Ridge 1st Add
Dunedin Shores
Dunedin Shores Sub
Fairway Estates
Fairway Estates 3rd Add
Fairway Estates 4th Add
Fairway Estates 7th Add
Fairway Manor
Fenway On The Bay
Fenwayonthebay
Grove Acres
Grove Terrace
Harbor View Villas
Harbor View Villas 1st Add
Harbor View Villas 1st Add Lot
Harbor View Villas 4th Add
Heather Hill Apts
Highland Estates
Highland Park Hellers
Jones Geo L Sub
Lakeside Terrace 1st Add
Lakeside Terrace Sub
Lazy Lake Village
Lofty Pine Estates 1st Add
New Athens City
None
Not In Hernando
Oak Lake Heights
Oakland Sub
Oakland Sub 2
Patricia Estates
Pinehurst Village
Pleasant View Terrace 3rd Add
Ravenwood Manor
Robin Woods Estates
Royal Yacht Club North Condo
San Christopher Villas
Scots Landing
Scotsdale Cluster Condo
Scotsdale Villa Condo
Sherwood Forest
Shore Crest
Simpson Wifes Add
Skinners Lee B Sub
Spanish Acres
Spanish Manor
Spanish Pines
Sunny View Sub
Tanglewood East
Trails West
Union Park Villas
Villas Of Forest Park Condo
Virginia Crossing
Virginia Park
Waterford East
Weathersfield Sub
Weybridge Woods
Weybridge Woodsunit C
Willow Wood Village
Wilshire Estates
Wilshire Estates Ii
Wilshire Estates Ii Second Sec
Winchester Park
Winchester Park North





















































