12308 Great Basin Drive, HUDSON, FL 34669
Priced at Only: $279,990
Would you like to sell your home before you purchase this one?
- MLS#: TB8467759 ( Residential )
- Street Address: 12308 Great Basin Drive
- Viewed: 5
- Price: $279,990
- Price sqft: $185
- Waterfront: No
- Year Built: 2026
- Bldg sqft: 1512
- Bedrooms: 3
- Total Baths: 2
- Full Baths: 2
- Garage / Parking Spaces: 1
- Days On Market: 4
- Additional Information
- Geolocation: 28.3491 / -82.6131
- County: PASCO
- City: HUDSON
- Zipcode: 34669
- Subdivision: Colony Road
- Elementary School: Mary Giella
- Middle School: Hudson
- High School: Hudson
- Provided by: D R HORTON REALTY OF TAMPA LLC
- Contact: Jodi Smenda
- 813-736-3541

- DMCA Notice
Description
Pre Construction. To be built. The builder is offering buyers up to $25,000 towards closing costs with the use of a preferred lender and title company.
Brighton Park, a premier new home community located in Hudson, FL, in beautiful Pasco County. This community offers modern single family homes designed for todays lifestyle, with convenient access to major highways such as US 19 and SR 52. Brighton Park is ideally situated for quick commutes to Tampa, St. Petersburg, and Clearwater, making it a great location for those seeking proximity to the Tampa Bay area while enjoying a peaceful suburban setting.
These homes feature D.R. Hortons block on block construction, ensuring durability and security. Equipped with Americas Smart Home technology, each home provides the latest in convenience and energy efficiency. Residents of Brighton Park will also appreciate its well connected community, with easy access to shopping, dining, and entertainment options in nearby Hudson, as well as outdoor activities like boating and fishing along the Gulf Coast.
Brighton Park is designed for families seeking quality and affordability in a quaint location. The community offers a variety of floor plans to suit diverse lifestyles, all built with quality finishes, including quartz countertops and stainless steel appliances.
Pictures, photographs, colors, features, and sizes are for illustration purposes only and will vary from the homes as built. Home and community information, including pricing, included features, terms, availability, and amenities, are subject to change and prior sale at any time without notice or obligation. Materials may vary based on availability. D.R. Horton Reserves all Rights.
Payment Calculator
- Principal & Interest -
- Property Tax $
- Home Insurance $
- HOA Fees $
- Monthly -
For a Fast & FREE Mortgage Pre-Approval
Apply Now
Apply NowFeatures
Building and Construction
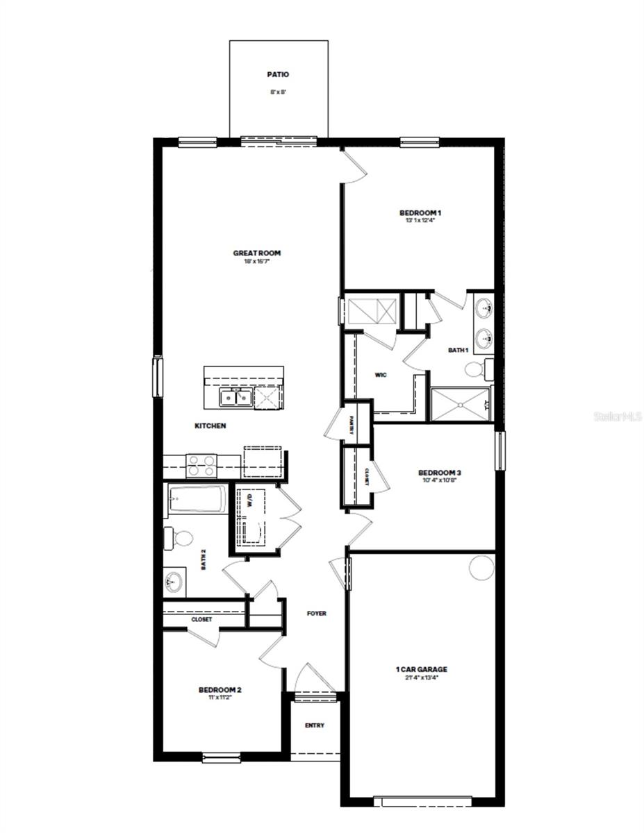
- Builder Model: Greenbriar
- Builder Name: D.R. Horton
- Covered Spaces: 0.00
- Flooring: Carpet, Luxury Vinyl
- Living Area: 1223.00
- Roof: Shingle
Property Information
- Property Condition: Pre-Construction
Land Information
- Lot Features: Sidewalk, Paved
School Information
- High School: Hudson High-PO
- Middle School: Hudson Middle-PO
- School Elementary: Mary Giella Elementary-PO
Garage and Parking
- Garage Spaces: 1.00
- Open Parking Spaces: 0.00
Eco-Communities
- Water Source: Public
Utilities
- Carport Spaces: 0.00
- Cooling: Central Air
- Heating: Central
- Pets Allowed: Yes
- Sewer: Public Sewer
- Utilities: Public, Underground Utilities
Finance and Tax Information
- Home Owners Association Fee: 64.00
- Insurance Expense: 0.00
- Net Operating Income: 0.00
- Other Expense: 0.00
- Tax Year: 2025
Other Features
- Appliances: Dishwasher, Dryer, Microwave, Range, Refrigerator, Washer
- Association Name: Breeze Home
- Country: US
- Furnished: Unfurnished
- Interior Features: Open Floorplan
- Legal Description: COLONY ROAD PLAT PB 99 PG 90 LOT 30
- Levels: One
- Area Major: 34669 - Hudson/Port Richey
- Occupant Type: Vacant
- Parcel Number: 33-24-17-0160-00000-0300
- Zoning Code: MPUD
Contact Info
Property Location and Similar Properties
Nearby Subdivisions
Brighton Park
Colony Road
Cypress Run At Meadow Oaks
Fairway Villas At Meadow Oaks
Greenside Village
Highlands
Lakeside
Lakeside Ph 1a 2a 05
Lakeside Ph 1b 2b
Lakeside Ph 3
Lakeside Ph 4
Lakeside Ph 6
Lakewood Acres
Legends Pointe
Legends Pointe Ph 1
Meadow Oaks
Not In Hernando
Not On List
Palm Wind
Parkwood Acres
Parkwoood Acres
Pine Ridge
Preserve At Fairway Oaks
Preserve At Legends Pointe Ph
Reserve At Meadow Oaks
Shadow Lakes
Shadow Ridge
The Preserve At Fairway Oaks
The Preserves At Fairway Oaks
Timberwood Acres Sub
Verandahs
Wood View At Meadow Oaks
Woodland Village At Shadow Run

























