2651 Calvano Drive, LAND O LAKES, FL 34639
Priced at Only: $749,900
Would you like to sell your home before you purchase this one?
- MLS#: TB8469025 ( Residential )
- Street Address: 2651 Calvano Drive
- Viewed: 276
- Price: $749,900
- Price sqft: $133
- Waterfront: No
- Year Built: 2014
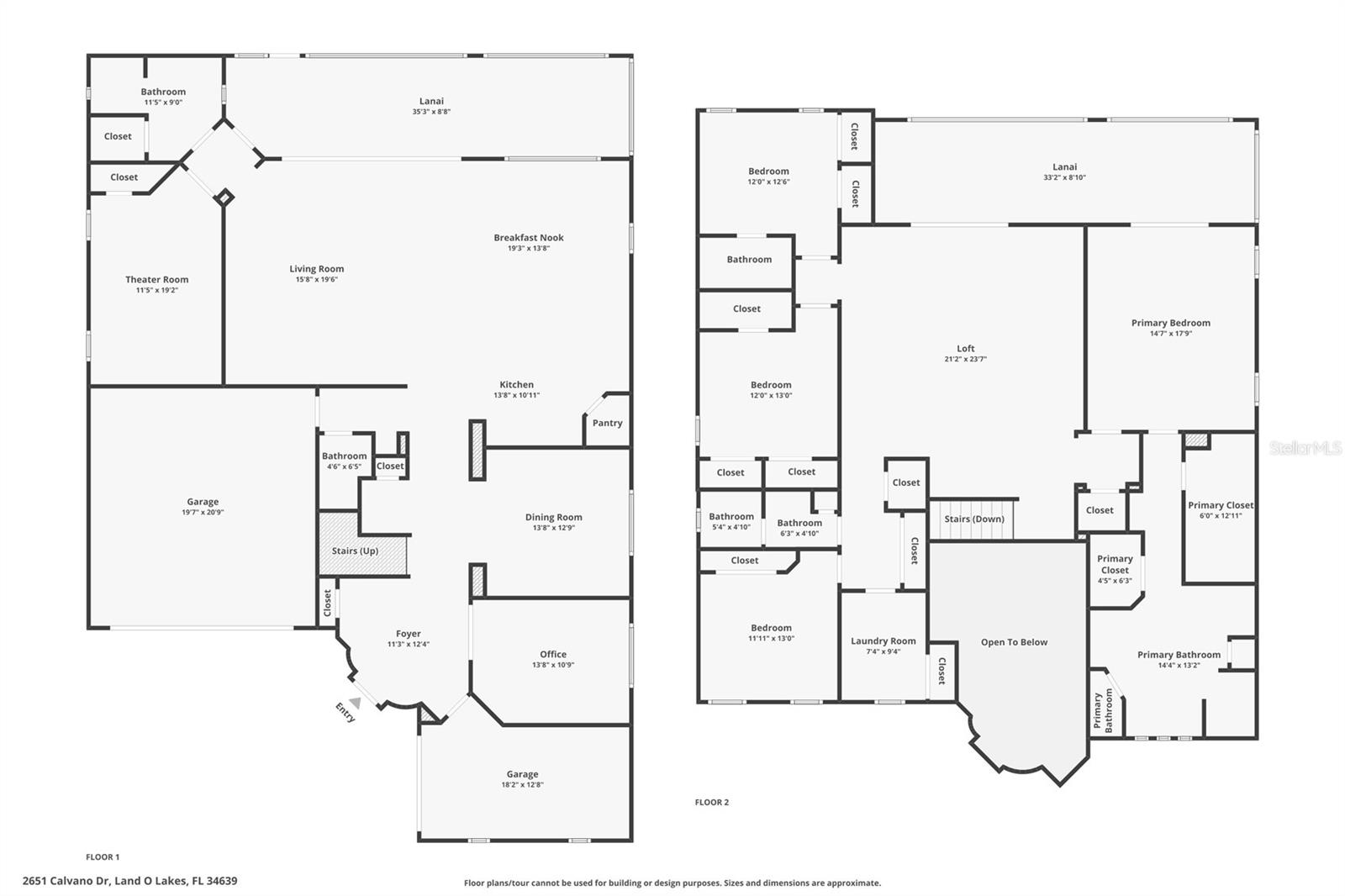
- Bldg sqft: 5643
- Bedrooms: 5
- Total Baths: 5
- Full Baths: 4
- 1/2 Baths: 1
- Garage / Parking Spaces: 3
- Days On Market: 105
- Additional Information
- Geolocation: 28.1951 / -82.4234
- County: PASCO
- City: LAND O LAKES
- Zipcode: 34639
- Subdivision: Enclaveterra Bella Ph 24
- Elementary School: Denham Oaks
- Middle School: Charles S. Rushe
- High School: Sunlake
- Provided by: COLDWELL BANKER REALTY
- Contact: Michael Kernodle
- 813-253-2444

- DMCA Notice
Description
This impressive five bedroom, five bath executive residence offers a rare combination of architectural presence, thoughtful design, and everyday livability in the sought after Enclave at Terra Bella. From the moment you enter, soaring ceilings, a sweeping staircase, and abundant natural light create a sense of scale and sophistication.
Designed for both productivity and relaxation, the home features a private office, formal dining space, and expansive open concept living areas ideal for entertaining. The gourmet kitchen anchors the home with an oversized center island, walk in pantry, and carefully selected finishes that blend style with function. A dedicated theater room provides a true cinematic escape, while generously sized bedrooms and flexible living spaces accommodate a variety of lifestyles.
Enjoy seamless indoor outdoor living with a covered main level lanai and a second story lanai, offering multiple spaces to unwind or host guests. Located in a quiet, amenity rich community with a resort style pool and clubhouse, and just minutes from Tampa Premium Outlets, Wiregrass Mall, dining, entertainment, and major commuter routes, this home delivers comfort, convenience, and elevated living.
Payment Calculator
- Principal & Interest -
- Property Tax $
- Home Insurance $
- HOA Fees $
- Monthly -
For a Fast & FREE Mortgage Pre-Approval
Apply Now
Apply NowFeatures
Building and Construction
- Covered Spaces: 0.00
- Exterior Features: None
- Fencing: Vinyl
- Flooring: Carpet, Tile, Wood
- Living Area: 4221.00
- Roof: Concrete
School Information
- High School: Sunlake High School-PO
- Middle School: Charles S. Rushe Middle-PO
- School Elementary: Denham Oaks Elementary-PO
Garage and Parking
- Garage Spaces: 3.00
- Open Parking Spaces: 0.00
- Parking Features: Garage
Eco-Communities
- Water Source: Public
Utilities
- Carport Spaces: 0.00
- Cooling: Central Air
- Heating: Central, Natural Gas
- Pets Allowed: Yes
- Sewer: Public Sewer
- Utilities: Public
Finance and Tax Information
- Home Owners Association Fee: 60.00
- Insurance Expense: 0.00
- Net Operating Income: 0.00
- Other Expense: 0.00
- Tax Year: 2025
Other Features
- Appliances: Dishwasher, Refrigerator
- Association Name: Melinda Spall
- Association Phone: 813-600-1100
- Country: US
- Furnished: Unfurnished
- Interior Features: Ceiling Fans(s), Walk-In Closet(s)
- Legal Description: ENCLAVE AT TERRA BELLA PHASES 2 3 AND 4 PB 67 PG 019 LOT 75 OR 9012 PG 1031
- Levels: Two
- Area Major: 34639 - Land O Lakes
- Occupant Type: Owner
- Parcel Number: 29-26-19-0080-00000-0750
- Possession: Negotiable
- Views: 276
- Zoning Code: MPUD
Contact Info
Property Location and Similar Properties
Nearby Subdivisions
Braesgate At Sable Ridge
Conners Lake Front Estates
Conners Lakefront Estates
Cypress Estates
Dupree Gardens 1st Add
Dupree Lakes
Dupree Lakes Ph 02
Dupree Lakes Ph 1
Dupree Lakes Ph 3c2
East Lake Add
Enclave
Enclave Ph 02
Enclavelk Padgett
Enclaveterra Bella Ph 24
Grand Oaks Ph 02
Grand Oaks Ph 03
Heron Point At Sable Ridge Ph
Lake Padgett Estates
Lake Padgett Estates East
Lake Padgett Estates East Unre
Lake Padgett Pines
Lake Padgett South
Lakes At Sable Ridge Ph 01
Landings At Bell Lake Ph 01
Manorslk Padgett
Oak Villa
Oasis
Plantation Palms
Plantation Palms Ph 02a
Plantation Palms Ph 02b
Plantation Palms Ph 04a
Plantation Palms Ph 04b
Plantation Palms Ph 06
Sable Rdg Ph 6a2
Sable Ridge Ph 03
Sable Ridge Ph 06a1
Sable Ridge Ph 3a
South Grove Add
Stagecoach Village 02 Ph 01
Stagecoach Village 02 Ph 02
Swann Lake
Twin Lake Phase One
Valencia Gardens Ph 03
Valencia Gardens Phase One

































































